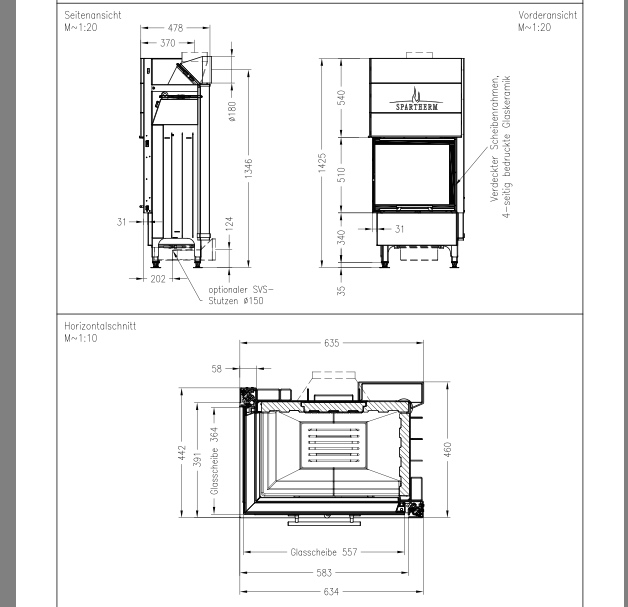
IMG_9936 Published October 7, 2015 at 628 × 607 in Fired Up, then Burned Out: the excitement and exhaustion of choosing a stove