The story of the design for the House at Cuil started with a little sketch that Matt, the architect, drew as part of the tender document for the job. It had a main roof-line north-south, harled, and a wood-clad gable extending west, making it an L-shape. There was a deck in the enclosed corner facing south and west.
I liked this sketch when I saw it and, in fact, it was one of the reasons that I chose John Gilbert Architects, and specifically Matt Bridgestock, to do the job. However, until recently, I hadn’t thought much about that little sketch.
It’s been a long time since Autumn 2011 when we finally bought the plot and engaged the architect, and between then and now, the house has been through an eclectic assortment of different styles, none bearing much of a resemblance to that original idea in outward appearance. This may have been because the spec had changed at that point to a four bedroom house and so needed a different approach (we are now back to three bedrooms due to needing to keep a lid on costs) but I’m not entirely sure.
Despite my initial enthusiasm for the simple sketch’s design, I had forgotten all about it until we had a meeting with our planning officer to try and get the planning permission sorted for the house.
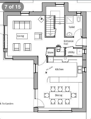
As the discussions with the planing officer progressed and we agreed changes to the design, Matt noticed that we were heading full-circle. We were heading back towards the design, that we had sent to planners in the pre-application and, frustratingly, we had altered at their suggestion. But it bore an even more striking resemblance to that original sketch. Both have a similar shape, orientation and materials for cladding. Even the interior is similar, except for the position of the stairs.
After all the grand plans and changes and tweaks and headaches, we’ve come full-circle. Which leads me to ask why it has taken such a long journey to end up so close to where we started.
I’m thinking of it as akin to a refining process: you start with potential; something sparkly but not very useful, and via a long and tiring process, with many unrecognisable intermediate stages, you finish
with the refined gold. I think that this long process of designing the house has been useful, necessary even. The journey itself has added immeasurably to the final design.
I loved that original sketch and I love the final design even more. I am glad that, somehow, we found our way back there.



